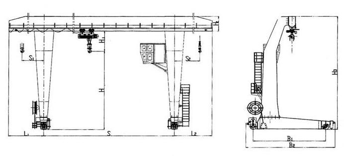
L型电动葫芦门式糖心视频免费看机与CD1单速电动葫芦或MD1型单速电葫芦配套设施应用,是一种有轨运作的小型吊车,适用吊重5-10吨,跨距16-30米。办公环境-20-+40℃。
L型电动葫芦门式糖心视频免费看机为一般主要用途糖心视频免费看设备,适用室外工作的固定不动跨间,装卸搬运或爬取原材料。有路面实际操作和房间内实际操作二种方法。远程服务器严禁吊装易燃易爆物品。



相关推荐
联系人:徐经理
手机:13782575673
电话:0373-8611375
邮箱:hnzyaqqz@126.com
官网:www.mserw.com
地址:河南长垣糖心视频免费看工业园区华豫大道中段