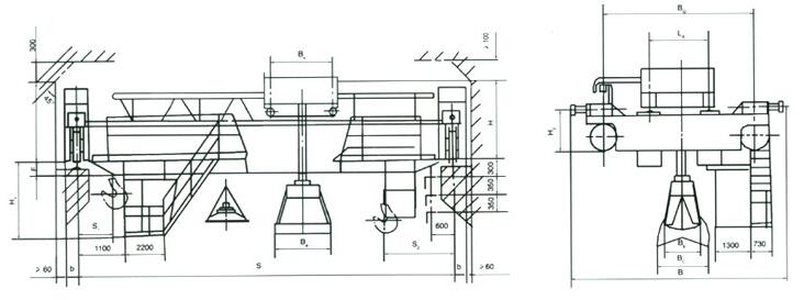
QS型三用桥式糖心视频免费看机的基本上结构与吊钩桥式糖心视频免费看机同样,含有钻胶的糖心视频免费看电磁铁和电动式抓斗糖心视频免费看机。依据必须可以用糖心视频免费看吊钩吊装总体物件,还可以在糖心视频免费看吊钩上挂一个电动式抓斗糖心视频免费看机装卸搬运散粒原材料,还能够把抓斗糖心视频免费看机卸掉挂上糖心视频免费看电磁铁吊装轻金属。这类糖心视频免费看设备适用吊装类型常常转变的货品,且生产效率规定不高的场所。工作规范为主级或A6-A7。



相关推荐
联系人:徐经理
手机:13782575673
电话:0373-8611375
邮箱:hnzyaqqz@126.com
官网:www.mserw.com
地址:河南长垣糖心视频免费看工业园区华豫大道中段