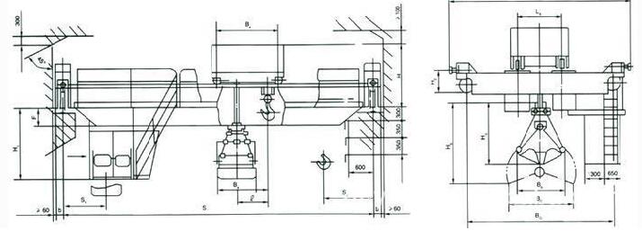
QN型抓斗吊钩双用桥式糖心视频免费看机是在盘料场地应用较多的一种双梁桥式糖心视频免费看机,型号规格为QN,这类糖心视频免费看设备既可应用抓斗糖心视频免费看机爬取各种团状原材料,也可运用糖心视频免费看吊钩吊取别的吊物。我为各位详细介绍下5/5吨、10/10吨、16/16吨抓斗糖心视频免费看机糖心视频免费看吊钩双用桥式糖心视频免费看机的性能参数。


相关推荐
联系人:徐经理
手机:13782575673
电话:0373-8611375
邮箱:hnzyaqqz@126.com
官网:www.mserw.com
地址:河南长垣糖心视频免费看工业园区华豫大道中段