您好,欢迎进入河南省中原糖心视频在线看实业有限公司官方网站!

与时俱进,诚赢客户

糖心VLOG网页版、提梁机、门式糖心视频免费看机生产厂家

服务电话:13782575673

技术资料

您现在所在位置:首页>>技术资料>>16/3.2吨双梁行车桥式糖心视频免费看机性能参数

16/3.2吨双梁行车桥式糖心视频免费看机性能参数

本文链接:http://www.mserw.com/jszc/1400.html   发布时间:2022-01-24 11:43:54  点击量:2652

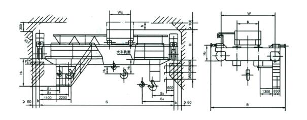
  16/3.2吨双梁行车也属于桥式糖心视频免费看机,一般运用在房间内场所。该吨数双梁行车有主辅2个糖心视频免费看吊钩。双梁桥式糖心视频免费看机的工作中等级一般为A5、A6,可以运用在工作中较为经常或是载重比较大的场地。我为各位详细介绍下16/3.2吨双梁驾驶的性能参数。

  16/3.2吨双梁行车结构图

16/3.2吨双梁行车结构图

  16/3.2吨双梁行车参数图

16/3.2吨双梁行车参数图

文章聚合页面: 糖心视频免费看机参数 16吨

技术资料

联系糖心视频在线看

CONTACT US

联系人:徐经理

手机:13782575673

电话:0373-8611375

邮箱:hnzyaqqz@126.com

官网:www.mserw.com

地址:河南长垣糖心视频免费看工业园区华豫大道中段

网站地图